Details
-
Date : 04-2025 To 09-2025
Category : Academic Reserch project
Usage: Residential Building
Status : Completed
Core Competencies
BIM · Digital Twin · Prefabricated Building · Revit 2025 · RevitToSCIA · SCIA Engineer · Structural Analysis · Eurocode · IFC · Dynamo · Python · C# · IoT
Project Summary:
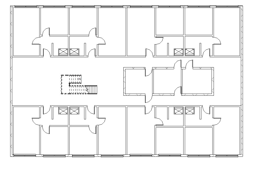
- Developed a digital twin of the Jakobsplan Residential Building — a prefabricated concrete structure from the 1970s located in Weimar.
- Created an analytical model in Revit 2025 and successfully transferred it to SCIA Engineer using the RevitToSCIA plugin for structural analysis.
- Performed wind and earthquake simulations, comparing historical DIN standards (1968–1970) with modern Eurocode EN 1991-1/2 standards.
- Investigated the material properties of concrete and steel to identify durability issues and proposed strategies to enhance safety and service life.
- Utilized Python for data analysis and automation of hazard simulations
- Employed C# (Revit API) to develop custom scripts for automated plan generation and BIM parameter management.
- Integrated the Nordic Thingy:53 IoT sensor to collect real-time environmental data (temperature, humidity, air quality) and connected it to the digital twin for dynamic condition monitoring.
- Exported BIM and structural models to Unity 3D for digital twin visualization, including IoT integration and CO₂ footprint analysis.
- Prepared a technical report comparing standards, assessing structural performance, and providing recommendations to improve the building’s resilience and sustainability.











