Details
-
Date : 01/03/2018
Client : Sai enterprise and partners.
Category : Residential
Surat, Gujarat, Indi.
Residential Building Project
-
Role : Structural Engineer · Client Facing
Usage: Luxurious Residential Buildings.
Status : Completed
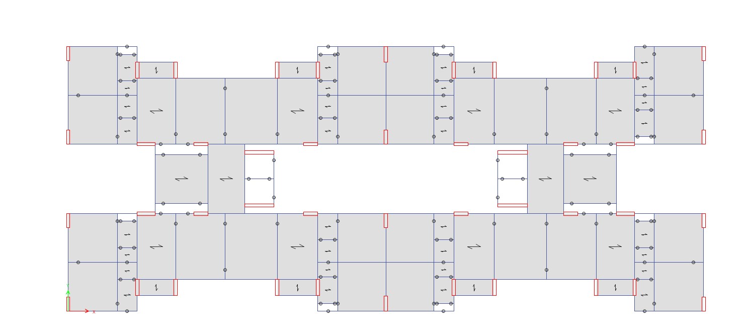
Project Description
The project consists of Basement (3.0m) +Ground Floor (3.0) + 1st to
13th Floor (3.0m), + Terrace.
Responsibilities
- Interpreted the project brief to define the structural scope of work and align design objectives with project requirements.
- Planned and organized the design workflow, estimating drawing quantities, design hours, and setting key project milestones.
- Developed and detailed structural designs in close coordination with architectural and service teams to ensure seamless integration.
- Led the 3D modeling of structural systems using ETABS, ensuring accuracy, stability, and design efficiency.
- Utilized engineering software and analytical tools to perform structural analysis and optimize performance.
- Worked collaboratively with multidisciplinary teams to address design challenges and maintain technical consistency.
- Presented design concepts and structural layouts to client representatives, ensuring clarity and alignment with expectations.
- Prepared RFPs for geotechnical and strengthening studies to support informed project decisions.
- Developed comprehensive structural specifications tailored to project scope and technical standards.
- Reviewed and evaluated technical and commercial proposals to ensure quality, compliance, and cost-effectiveness.


























